tomb
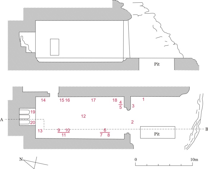
The tomb of Pa-heri is located in the main necropolis of Elkab in a row of tombs cut along the side of the cliff, on the left of the tomb of Ah-mes Pen-Nekhbet (no. 2), but on the higher level than the latter. It was oriented along the north-south axis and faced the Nile and the town.
The tomb of Pa-heri was cut in the sandstone cliff, has a simple plan which consists of a long single room and a niche for a statue in the rear wall. In front of the tomb, on the west of the axis of the tomb, a rectangular pit was cut. The east and north walls of the court as well as the walls inside the tomb were decorated.
For further reading see also: www.osirisnet.net.
See also Petrie MSS, Griffith Institute.
Bibliography:
- Griffith, Francis Llewellyn, Naville, Edouard, Tylor, Joseph John, Ahnas el Medineh (Herakleopolis Magna) with Chapters on Mendes, the Nome of Thoth, and Leontopolis. The Tomb of Paheri at el Kab, Memoir of the Egypt Exploration Fund XI, London 1894
- Tylor, Joseph John, Wall drawings and monuments of El Kab. The tomb of Paheri, London 1895
- Davies, W. Vivian, O'Connell, Elisabeth R., British Museum Expedition to Elkab and Hagr Edfu, 2012, British Museum Studies in Ancient Egypt and Sudan 19, 2012, Fig(s). 16

