Shrine 16 was situated 3.08m south from shrine 15, in the same cliff in the row of shrines 12-17, on the same level as shrines 12-15 and it faces the river.
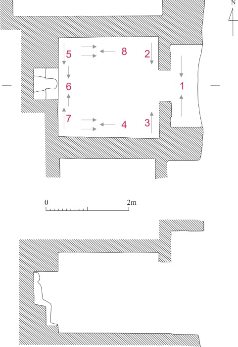
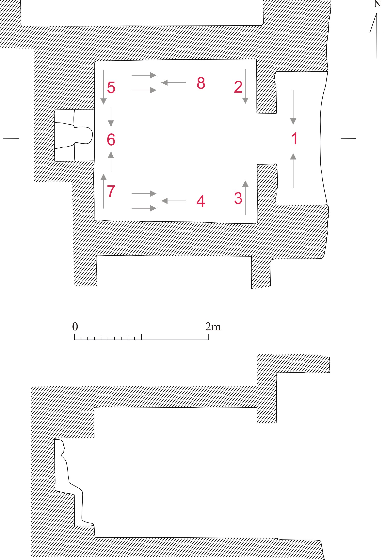
Shrine 16 is hewn in the rock according to the typical simple architectural plan: it consists of a single room with a flat ceiling and a niche for a statue in the rear wall. Its façade is recessed 80cm into the face of the rock. Above the recessed entrance of the shrine, a small niche, probably for the statuette of the official, was carved in the rock. R.A. Caminos and T.H.G. James did not believe in the connection between the shrine and the small niche,[1] but its location on the axis of the shrine[2] as well as analogies from Thebes (e.g. Sen-en-mut's tomb TT 71) make this relationship very likely. The room is almost square and relatively high in comparison with other shrines, measuring 2.45m of width and 2.47m of depth and being 1.98m high. The decoration was executed in very fine sunken relief[3] and painted, although colours did not survive, only fragments of paint can be noticed on the kheker-frieze. The decoration of the walls was surrounded by a block border from three sides and finished at the top with the kheker-frieze.[4] The shrine was prepared for the High Steward, Sen-en-mut and all his figures as well as names and titles were erased in this way that they are still legible. Other mutilations can be also observed, some gods and their names as well as the figures, names and titles of Hatshepsut were chiselled out in different historical periods.
Footnotes
- ^ 41: Gebel es-Silsilah. I. The Shrines - - 1963 - Caminos, Ricardo A., James, T.G.H..
- ^ 256: Senenmut in Gebel es-Silsilah - - 2010 - Kucharek, Andrea.
- ^ A. Kucharek pays special attention to it: 256: Senenmut in Gebel es-Silsilah - - 2010 - Kucharek, Andrea.
- ^ The presence of the kheker-frieze is unique in the decoration of Gebel es-Silsilah shrines: 256: Senenmut in Gebel es-Silsilah - - 2010 - Kucharek, Andrea.
Bibliography:
- James, T.G.H., Caminos, Ricardo A., Gebel es-Silsilah. I. The Shrines, Archaeological Survey of Egypt 31, London 1963, 53-56 , Pl(s). 7 [1], 33, 34, 40-44
- Porter, Bertha, Moss, Rosalind L.B., Topographical Bibliography of Ancient Egyptian Hieroglyphic Texts, Reliefs, and Paintings V. Upper Egypt: Sites (Deir Rîfa to Aswân, Excluding Thebes and the Temples of Abydos, Dendera, Esna, Edfu, Kôm Ombo and Philae), 2nd ed., Oxford 1962, 215
- Sethe, Kurt, Die Thronwirren unter den Nachfolgern Königs Thutmosis' I., Leipzig 1896, 84 (§ 11e)
- Delvaux, Luc, Hatchepsout Senenmout et l’atelier de Neferkhaout, [in:] W. Claes, H. de Meulenaere, S. Hendrickx (eds), Elkab and Beyond. Studies in Honour of Luc Limme, Orientalia Lovaniensia Analecta 191, Leuven, Paris, Walpole, MA 2009, 245-260
- Kucharek, Andrea, Senenmut in Gebel es-Silsilah, Mitteilungen des Deutschen Archäologischen Instituts, Abteilung Kairo 66, 2010, 143-159
- Kucharek, Andrea, Gebel el-Silsila, 2012, in: Wendrich, Willeke, UCLA Encyclopedia of Egyptology, http://escholarship.org/uc/nelc_uee, Los Angeles 2008-, Fig(s). 7, plan

